Travaux et aménagements dans la commune en 2014
.jpg)
Rénovation de deux salles à l'école élémentaire
Une salle partagée entre l'école et le péri-scolaire
La bibliothèque, également salle de peinture
Rénovation de l'éclairage public
Remise en peinture de tous les luminaires de la route de Saverne à Stutzheim
En juin 2014, installation de nouveaux luminaires route de Behlenheim à Offenheim, avec un rendement lumineux nettement supérieur.
Protection des personnes
Rénovation des rambardes du petit pont
Mise en place d'une rampe salle de la Souffel
Aménagement de l'entrée de l'église de Stutzheim
Un nouveau parvis, mis à niveau ; puis remise en état des joints des escaliers
Rehaussement des piliers ; et pose d'une nouvelle main courante
.jpg)
.jpg)
.jpg)
.jpg)
De nouveaux abris-bus dans la traversée du village
Plus grands, ces abris-bus sont décorés avec les logos de Stutzheim-Offenheim et sont équipés de bancs reposoirs.
Une nouvelle porte à la mairie
La municipalité a fait poser une porte de sécurité et plus isolante,
à l'arrière de la mairie.
Un nouveau grillage à l'arrière des salles des Loisirs et de la Souffel
Ce grillage a une double fonction :
- La création d'un espace protégé pour les enfants fréquentant les NAP et les Champs d'Escale. En effet, de nombreux enfants de l'école maternelle fréquentent le péri-scolaire.
- Des inconnus squattaient l'arrière des salles la nuit, en y laissant des détritus de toutes sortes, y compris des bouteilles d'alcool, quelquefois cassées. Il fallait fréquemment nettoyer cet endroit qui devenait dangereux.
La municipalité a donc pris la mesure qu'il fallait, après concertation avec les principales associations concernées. Ce sont d'ailleurs des bénévoles du football club de Stutzheim-Offenheim qui ont aidé à la pose des piquets et des grilles.
Aménagement de l'espace Quirin
Les travaux du nouveau lotissement avancent normalement. La résidence Villas Nova en novembre 2014 :
.jpg)
Les dépendances de la ferme Quirin ont été démolies mi 2014, elles seront remplacées par une résidence séniors. Deux liaisons piétons / vélos sont prévues : l'une entre la rue de la Ferme Quirin en direction du Hagelweg est déjà réalisée, et l'autre vers l'entrée du village le long de la route de Saverne début 2015.
Plan de l'espace Quirin

Les trois nouvelles rues portent les noms suivants :
- Rue de la Ferme Quirin (en souvenir du nom des anciens maires de Stutzheim du XIXème siècle et du début du XXème. Le dernier d'entre eux a réalisé une sortie d'exploitation sur cet emplacement)
- Rue du Grand Hallier (traduction de « Grosse Hagelbreite », « Hagel » étant pris dans le sens d'un couvert de buissons = un hallier dont l'origine étymologique serait « Hagel », qui a donné en français halle et hallier…)
- Rue du Coteau Étendu (traduction de « Grosse Hagelbreite », « Hagel » étant pris dans le sens d'une colline = « Hugel ». Ce serait alors une large pente sur un coteau).
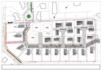
Lotissement La Croix de St André

Dans ce lotissement, une trentaine de maisons individuelles ou jumelées seront construites. Aucun immeuble collectif n'a été érigé à Offenheim depuis 2008, et aucun projet d'immeuble collectif n'est prévu à ce jour, malgré les demandes des promoteurs immobiliers.
Pourtant, il faut savoir que le Grenelle 2 de l'environnement impose une forte densification de l'urbanisation, pour éviter la surconsommation des espaces et pour lutter contre l'étalement urbain. Il suffit de voir ce qui se construit dans les communes voisines, ou bien même à Lampertheim.
En raison du classement de l'église d'Offenheim, le style architectural et les règles d'urbanismes des constructions sont contrôlés et validés par les Architectes des Bâtiments de France.
Travaux de voirie
Pose d'un avaloir en prévision de fortes pluies, puis pose de l'enrobé Chemin du Kleinfeld.
.jpg)
.jpg)
.jpg)
.jpg)
.jpg)
Mise à niveau des pavés sur l'îlot central afin de faciliter l'accès aux bâtiments des Trèfles Route de Saverne.
Le chemin des Bleuets a été reprofilé et un enrobé y a été déposé.
Profilage du chemin et pose d'un enrobé impasse de la Sablière à Offenheim.
Réfection du dos d'âne ralentisseur et passage piétons, à l'entrée de Stutzheim.
Rénovation de la rue des Sarments.
Nouvelle aire de covoiturage sur le parking Hagelweg

Le Conseil Général du Bas-Rhin poursuit sa politique de développement du covoiturage avec la création, en partenariat avec la commune, de 5 places réservées au covoiturage disponibles sur le parking Hagelweg, face au cimetière.
Gratuites et accessibles 24h/24, ces places sont proches de la RD 41 direction Strasbourg ou Saverne, et repérables grâce à un panneau de signalisation "covoiturage". L'accès est également balisé par une signalisation directionnelle.






Stutzheim-Offenheim.jpg)
